Luxury Garden

Image

BORALİNA MÜCEVHERAT VE İNŞAAT’ın amacı gelişen dünyaya ayak uydurarak hep bir adım ileride olmaktır. Bizlere duyduğunuz güveni, sizlerin gülen gözlerinde görmek en büyük kazancımızdır. Bu nedenle, güven ve dostlukla gülen insanların sayısını arttırmak en büyük hedefimizdir.

Belek, Yunus Emre Cd.

07506 Belek/Serik/Antalya

+90 505 228 15 03

[email protected]

© 2021 Luxury Garden | Boralina Construction

0
Kullanım Alanı
0
Salon
0
Mutfak
0
Master Yatak Odası
0 Adet
Teras Yatak Odası

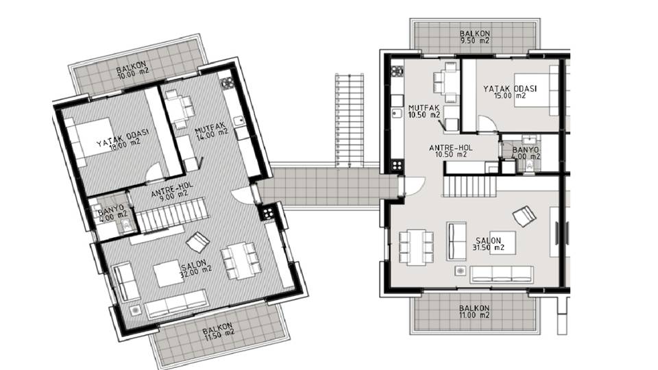
1.Kat Planı

1.Kat Planı

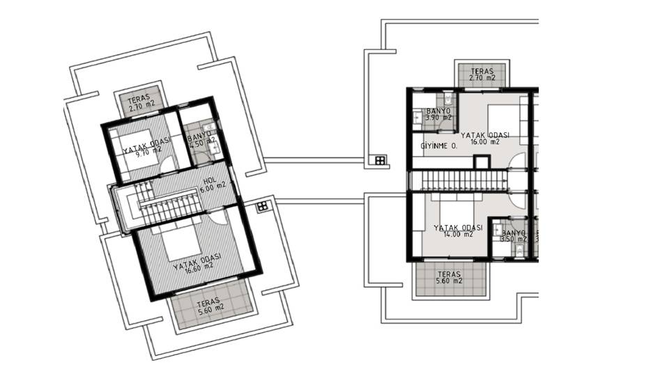
Çatı Katı Planı

Çatı Katı Planı

1.Kat

  • 150 m² Kullanım Alanı
  • 36 m²  Salon
  • 11 m² Mutfak
  • 15 m² Master Yatak Odası
  • 5 m² Banyo WC
  • 10 m² Antre ve Salon
  • 10 m² Balkon

Teras Kat

  • 14 m² Yatak Odası
  • 14 m² Yatak Odası
  • 3 m² Ebeveyn Banyo WC
  • 3 m² Ebeveyn Banyo WC
  • 3 m² Giyinme Odası
  • 6,5 m² Balkon
  • 3 m² Balkon
Prev
Next